• Дукиао экономическое развитие зона, Цзинсяньская рисовая, Хэншуй, Хэбэй Китай
  • (86) 188-3188-7776
  • sales@minghose.com

Наши новости

Обладая более чем 25-летним опытом работы во всех отраслях промышленности

МЕХАНИЧЕСКИЕ ОПАСНОСТИ-2_ ОБРАБОТКА РЕЗИНЫ

By 29 марта 2019
(0 votes)

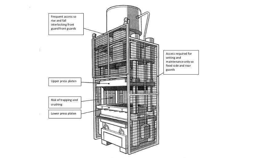
При оценке необходимых рисков и мер предосторожности следует учитывать:

скорость закрытия;
количество форм и количество дневного света;
ли вверх-поглаживание или вниз-поглаживание;
тип форм (сыпучих или фиксированных);
режим работы, в частности, если работа на одной или обеих сторонах и количество операторов;
количество тела доступ между пресс-форм.
Многие инциденты происходят во время технического обслуживания и смены инструмента и адекватного контроля против предотвращения падений из-за гравитации важны для вниз-поглаживание прессов. Они могут включать в себя скотч или с пилотным управлением обратный клапан и противовес сборки клапана в гидравлической цепи. Дополнительные сведения о требованиях к охране см.

BS EN 289 пластмассовые и резиновые Станки — прессы — требования безопасности
BS EN 201 пластмассовые и резиновые машины-машины для литья под давлением

Leave a comment

Make sure you enter all the required information, indicated by an asterisk (*). HTML code is not allowed.

Find us at

MAIN OFFICE:
Duqiao, Jingxian, Hengshui, Hebei Province, China

  0086-188-3188-7776
  sales@minghose.com

  0086 -188 3188 7776
  sales@mingflex.com

  Monday - Saturday: 8:00 Am - 18:00 Pm
Sunday: Closed

Send us a message

Please publish modules in offcanvas position.