• Дукиао экономическое развитие зона, Цзинсяньская рисовая, Хэншуй, Хэбэй Китай
  • (86) 188-3188-7776
  • sales@minghose.com

Наши новости

Обладая более чем 25-летним опытом работы во всех отраслях промышленности

Наименование введения использования различных резиновых характеристик

Наименование введения использования различных резиновых харак

Меры предосторожности при ежедневном использовании гидравлического шланга

Меры предосторожности при ежедневном использовании гидравличе

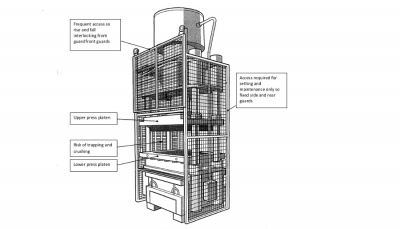
МЕХАНИЧЕСКИЕ ОПАСНОСТИ-2 ОБРАБОТКА РЕЗИНЫ

При оценке необходимых рисков и мер предосторожности следует у

МЕХАНИЧЕСКИЕ ОПАСНОСТИ-1_ОБРАБОТКА РЕЗИНЫ

Они значительно различаются с типом пресса и используемой опер

Страница 1 из 2

Find us at

MAIN OFFICE:
Duqiao, Jingxian, Hengshui, Hebei Province, China

  0086-188-3188-7776
  sales@minghose.com

  0086 -188 3188 7776
  sales@mingflex.com

  Monday - Saturday: 8:00 Am - 18:00 Pm
Sunday: Closed

Send us a message

Please publish modules in offcanvas position.